APPARTAMENTO SERENITY
Esclusivo appartamento a Forte dei Marmi, dove comfort, luce e stile si incontrano.
Posizione
MQ
150
Bagni
5
Posti Letto
Garage
DOTAZIONI/CONVENZIONI:
- Riscaldamento e raffrescamento a pavimento Clivet
- Home Control con gestione da remoto
- VMC – Ventilazione Meccanica Controllata
- Impianto fotovoltaico con monitoraggio remoto
- Colonnina di ricarica per auto elettrica
- Infissi Metra ad alte prestazioni
- Isolamento termo-acustico avanzato (doppio tappetino antirumore + camera d’aria 50 cm)
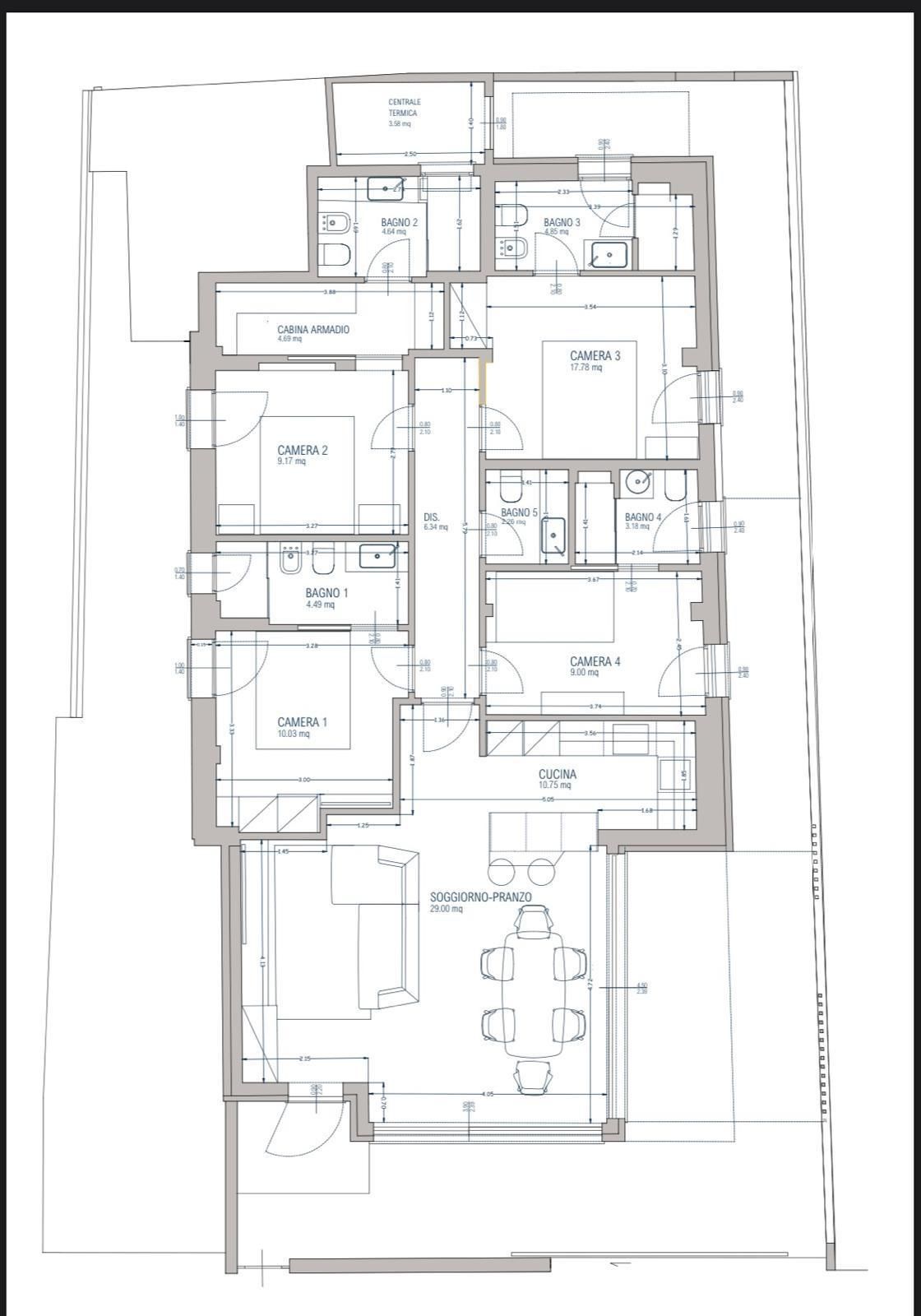
Questo raffinato appartamento al piano terra, situato in zona centrale, nasce da una ristrutturazione completa di un appartamento in villa, dove comfort contemporaneo, tecnologia e qualità costruttiva si fondono in un’abitazione esclusiva.
L’immobile, con facciata dotata di cappotto termico, si sviluppa su una superficie commerciale di circa 150 mq ed è caratterizzato da ambienti ampi e luminosi. L’ingresso conduce a una grande zona giorno con angolo cottura, elegante e funzionale, perfetta per la vita quotidiana e per accogliere ospiti. La zona notte ospita quattro camere, tutte con bagno privato, oltre a un bagno di cortesia e a una comoda zona lavanderia.
Gli spazi esterni rappresentano un vero valore aggiunto: una zona sotto pergola, ideale per momenti di relax all’aperto, è utilizzabile anche come posto auto, grazie al cancello d’ingresso ampio e scorrevole.
L’appartamento è dotato di impiantistica di ultima generazione, interamente nuova:
- Home Control con gestione da remoto di riscaldamento e raffrescamento a pavimento Clivet
- VMC (ventilazione meccanica controllata)
- Impianto fotovoltaico con controllo remoto
- Colonnina di ricarica per auto elettrica
- Videocitofono smart con apertura a distanza
- Cancello automatico con tastiera alfanumerica
- Illuminazione esterna con sensore crepuscolare
La sicurezza è garantita da un sistema di allarme completo con videosorveglianza, portone d’ingresso con apertura a chiave, impronta digitale e tastiera, predisposto anche per il controllo remoto.
Le finiture sono di alto livello: infissi Metra, cucina completa AEG con piano a induzione, forno, microonde e cantinetta vini. Il comfort acustico e termico è assicurato da un doppio tappetino antirumore interpiano e da una camera d’aria di circa 50 cm per un eccellente isolamento.
Una proprietà ideale per chi desidera vivere il centro di Forte dei Marmi con il massimo della privacy, della tecnologia e del comfort, senza rinunciare alla comodità del posto auto privato.
Ti invitiamo a metterti in contatto con noi per richiedere informazioni, fissare un appuntamento o una consulenza personalizzata. Il nostro staff è sempre disponibile a rispondere alle tue domande e a guidarti nella compravendita, locazione o gestione del tuo immobile a Forte dei Marmi.
+39 3395780547
* Campi Obbligatori
Contattaci
Ti risponderemo il più presto possibile.
Riprova in un secondo momento.
Recent Posts









































