VILLA VIA SANTOCCHI

Villa in esclusiva alla nostra agenzia

Posizione

circa 800 metri dal mare

MQ

188 MQ

Bagni

-

Posti Letto

14

Garage

18 MQ Circa

Posizione

circa 800 metri dal mare

MQ

188 MQ

-

Bagni

Posti Letto

14

18 MQ Circa

Garage

DOTAZIONI/CONVENZIONI:



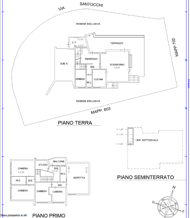
villa singola contornata da terreno ed autorimessa così composta al piano terra autorimessa, ingresso, cucina, disimpegno, wc, soggiorno, pranzo, ampio terrazza, locale caldaia, ripostiglio, armadi, vano scale; al primo piano da vano scale 4 camere, disimpegni, 2 wc, balcone, soffitta, studio, vano scala; al piano seminterraratoripostiglio sottoscala; ( come meglio specificato in planimetria allegata).

costruzione circa 188 mq

autorimessa 18 mq circa

più eventuali ampliamenti da verificare

lotto 590 mq circa

Richiesta: 1.650.000,00 €

Ti invitiamo a metterti in contatto con noi per richiedere informazioni, fissare un appuntamento o una consulenza personalizzata. Il nostro staff è sempre disponibile a rispondere alle tue domande e a guidarti nella compravendita, locazione o gestione del tuo immobile a Forte dei Marmi.

Icona Telefono

+39 3395780547

Icona E-mail

* Campi Obbligatori

Contattaci